Measuring distances, perimeters, and areas in PDF documents has never been easier. Measure PDF drawings, diagrams, text blocks, and more, for an endless variety of uses. Read on to learn how to measure in PDF with different PDF tools.
Way 1. How to Measure PDF in UPDF
When it comes to measuring a PDF, you might think of using Adobe Acrobat or other mainstream PDF tools for this task. However, some of them require subscriptions to access this feature. Yet, some people might simply want to know the dimensions of the design in a PDF. In such a case, UPDF for Windows comes to the rescue. It is a comprehensive PDF editor that is also designed with measuring features. Follow the steps below to measure a PDF in UPDF:
Step 1. Download and install UPDF on your device.
Windows • macOS • iOS • Android 100% secure
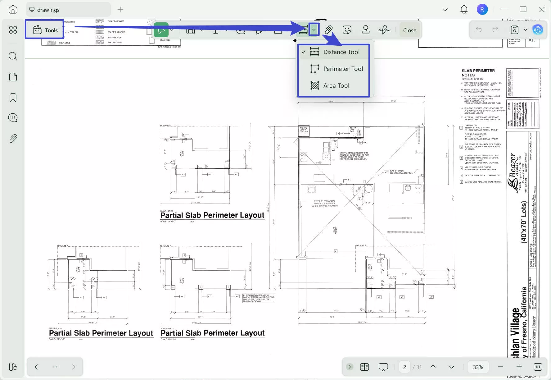
Step 2. Open the PDF that you want to measure and click the "Tools" > "Comment" tab in UPDF.
Step 3. There are three types when you're hovering on the Ruler icon:
- Distance Tool: This tool provides information such as the distance of the specified region, details about the X and Y axis angles, scale ratio, and precision of the provided details. If you want to measure the distance between two points, choose this tool.
- Perimeter Tool: This feature displays information regarding the distance, perimeter, angle, X and Y axis details, aspect ratio, and precision. If you want to measure a set of distances between multiple points, select it.
- Area Tool: The area tool provides details, including distance, area, angle, X and Y axis details, scale ratio, and precision. If you want to measure the area within the line segments that you draw, select it.

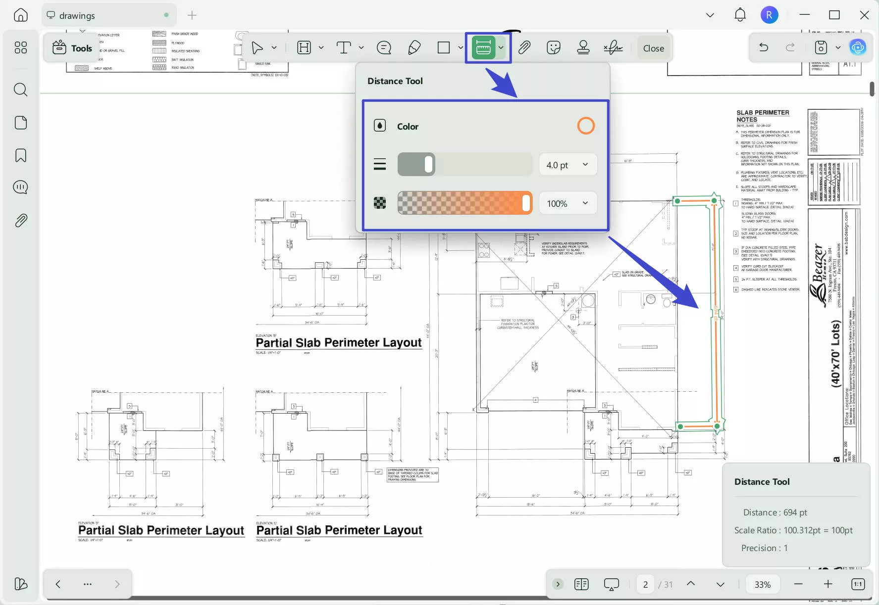
Step 4. In this user guide, we select the "Distance Tool". Hover over the measurement option to set its color, thickness, and opacity. Now, click on the first point, and then double-click on the second point. Then, UPDF will show you the distance.

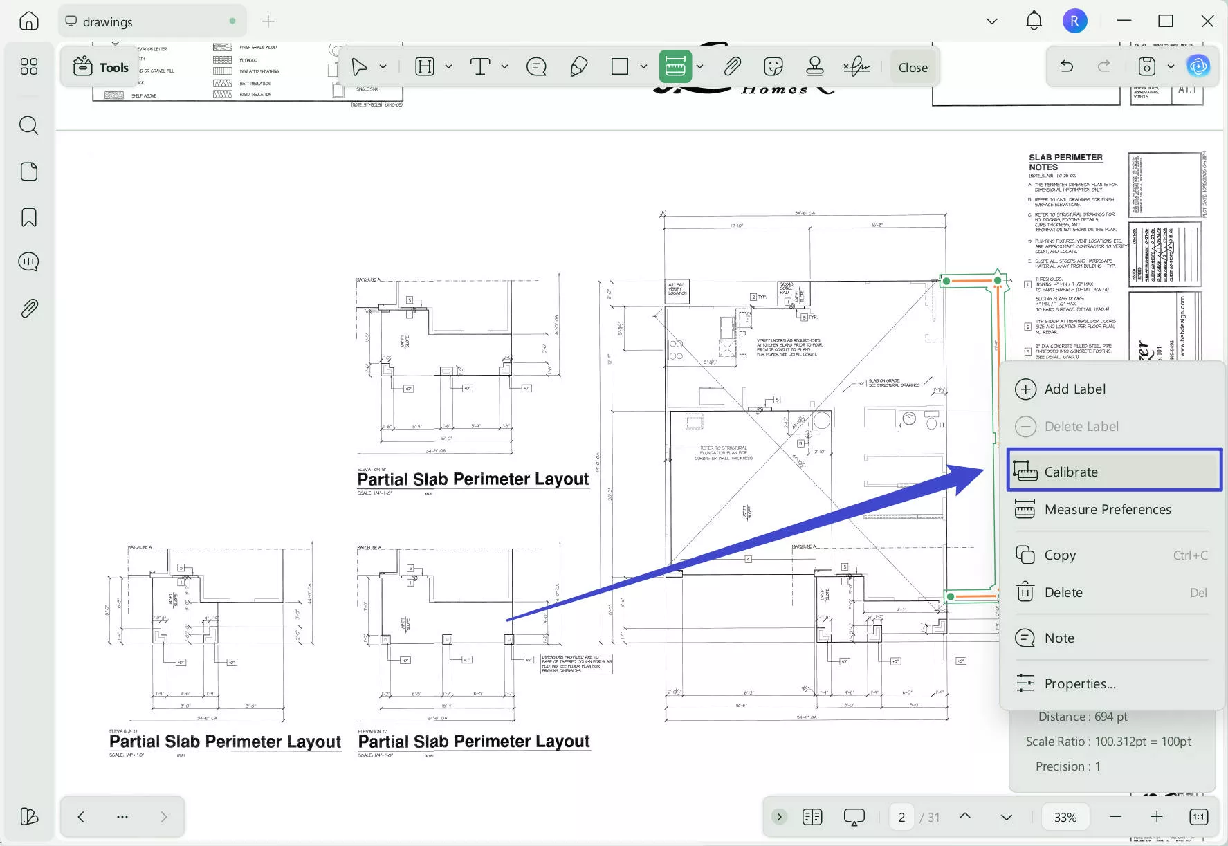
Step 5. In case the result does not match your requirement, you can calibrate by right-clicking on the distance or other measurement you added. Enter the text you need.

Bonus
Download UPDF and give it a try now.
Windows • macOS • iOS • Android 100% secure
Way 2. How to Measure in Adobe Acrobat (PDF Documents)
It's easy to measure lengths and areas of parts of your PDF document in Adobe Acrobat. You can use the 'Measurement Info' panel to read the measurement, delta values, and scale ratio of a section of the document. This tool can also be used to add comments with the distance, perimeter, or area calculations.
Here's a step-by-step guide for how to measure on PDF documents:
Step 1. Open your PDF document in Adobe Acrobat and select 'Tools', then 'Measure'.
Step 2. In the secondary toolbar, choose 'Measuring Tool' to show the Measuring toolbar and Measurement Info panel.

Step 3. Choose one of the options:
- Distance tool (to measure the distance between two points on the document)
- Perimeter tool (to measure the number of distances between two points on the document)
- Area tool (to measure the area within a section of the document that you draw)
Step 4. If you choose the Distance tool, click the two points that you want to measure between, one after the other.
Step 5. If you choose the Perimeter tool, click each point that you want to measure, and when you get to the final point, double-click.
Step 6. If you choose the Area tool, then click each point on the area you want to measure, and when you've clicked all of them, click the first one again to complete the measurement.
With this Adobe measurement tool, you can choose to:
- Snap to paths
- Snap to endpoints
- Snap to midpoints
- Snap to intersections
- Measure in increments of 45°
- Cancel measurements
- Delete measurements
Way 3. How to Measure in PDF Documents Online
If Adobe Acrobat isn't the tool for you, then you might want to try a measure PDF online tool like foxyutils. This tool, like Adobe, enables users to measure lengths, areas, and perimeters easily and accurately. What's more, this tool is far more affordable than Adobe software, costing less than UD$3 per month on an annual subscription.
Follow these steps to learn how to measure in PDF documents online with foxyutils.
- Open foxyutils and upload your PDF document.
- Before you begin measuring, you'll need to calibrate the page. Select 'Measure' in the toolbar, then choose 'Calibrate'. Add a known measurement by following the on-screen instructions that appear.
- Once your document is calibrated, you can measure distances by selecting 'Measure' and then choosing 'Distances'. Drag a line across the PDF where you want to measure, and when you release, the measurement will appear on the page and in the 'Totals' area on the right-hand side of the viewer.

- If you want to measure an area, then select 'Measure' and choose 'Areas'. Drag a rectangle across the page where you want to measure, and when you release, the measurement will appear on the page and in the 'Totals' area on the right-hand side of the viewer.

What is PDF Measurement?
PDF measurement is the process of assessing the length of a line between two points, around a perimeter, or within an area. Just as you would be able to measure the distance between two points on a physical piece of paper with a ruler, a PDF measuring tool does this digitally. It'll perform area and perimeter calculations for you automatically. Using this, you can add an appropriate scale to shapes, diagrams, and floorplans on a PDF document. The alternative to digital measurement is to print, measure, scan, and convert the document - a long process!
Whether you're a graphic designer working on a new design or a real estate agent finalizing a floor plan for your seller, this tool is invaluable for many professions. From technical uses such as analyzing architectural plans and survey data to creative and educational uses such as product design and Math homework sheets, measuring is made simple and quick to do using PDF measuring tools.
But why is this better than measuring the old-fashioned way, with a pen and ruler?
Well, for starters, it's much, much faster. Once you've calibrated the measuring tool, you can measure pages and pages of a PDF document almost instantly, with just a click here and a click there. Secondly, it's much more common to have documents digitally stored now than in paper form. Imagine how frustrating it would be if an architect got sent some plans digitally, then had to print them off, measure the distances, scan the document, and then convert the scanned pages back into a PDF, all before sending them on to a colleague or client. This long process is hugely simplified with the aid of PDF measuring tools.
When Do You Need to Measure in PDF?
It can be useful to measure lines and shapes in PDF documents for a number of reasons.
One common example is floorplans. These need to have fairly accurate PDF measurements in order to be at all useful. Floorplan measurements can be useful for estate agents, letting agents, property investors, home buyers, architects, engineers, builders, tradespeople, interior designers, town planners, surveyors and many more.
Educational resources are another example of a type of PDF document that might need accurate measurements. For this reason, PDF measuring can come in handy for Math teachers, Geography teachers, Science teachers, PE teachers, Art teachers, and more. Whether creating homework sheets, lesson plans, or activities for kids to do in class, a PDF measuring tool is a fantastic addition to a teacher's toolkit.
Town planners might also use PDF measuring tools to assess the size of plots of land, forested areas, waterways, towns, and cities. These measurements can be used by those in historical preservation teams, ecology teams, and environmental management teams for important decisions about town planning.
There are many more uses for measuring PDF drawings even still: graphic design, agricultural planning, medical imaging, manufacturing, insurance claims, and event planning to name just a few.
UPDF: A Rising Star in PDF Editing
As we've mentioned earlier, UPDF is more than a PDF measure tool. UPDF is an up-and-coming PDF editor for both professional and personal use. What's more, UPDF has a powerful AI Assistant feature which can help you chat with PDFs, Translate PDFs, generate a Mind map from a PDF, etc. Now, users can benefit from the features that UPDF has offered on both the free and paid plans. Try it yourself and you will love it.
Windows • macOS • iOS • Android 100% secure
Read and annotate PDFs
UPDF's annotation feature allows users to add comments, stamps, stickers, signatures, shapes, and more to PDF documents. This makes it a fantastic tool for collaborating with team members or clients. Share feedback in real-time, enhance the readability of your document, and ensure compliance with standard stamps like 'Confidential', 'In Review', and 'Approved'.

Edit PDFs
In addition to the annotation feature, UPDF has many other great features. Users can edit PDFs directly with the powerful and efficient edit function, allowing them to make changes to text, images, and hyperlinks within the document. This feature also allows users to add watermarks to their documents and change the background.
Convert PDFs
Sometimes a PDF just isn't the right format for your document. UPDF allows users to convert PDFs to a variety of other formats at the click of a button. Convert to Microsoft Office formats like Word, PowerPoint, Excel, and CSV, or to image files like PNG, JPEG, and GIF. You can even convert PDFs to HTML using this tool.
AI features of UPDF
UPDF utilizes the power of AI and machine learning to enhance user experience and productivity. Generate AI summaries, translations, and explanations for your document, and can even write text of its own from a short prompt. With UPDF's AI feature, users have their own, very powerful, online assistant.

The OCR feature
Optical Character Recognition (OCR) technology is another fantastic feature of UPDF. This technology converts images, like scanned documents, into text, providing a way for companies and individuals to digitize their paper documents. Once you've converted your scanned documents into text PDFs, you're able to edit and annotate them just like you would any other PDF document.
To know more about UPDF, you can watch the video below or read this review article.
Conclusion:
Hopefully, you now know how to measure PDF drawings! UPDF, Adobe Acrobat, and foxyutils are great ways to measure distances, areas, and perimeters in PDF documents quickly and with ease.
If you choose UPDF for measuring PDFs, you can enjoy UPDF's great range of other features including annotation, editing, conversions, OCR, and AI summarizing in the meantime. Download for free now, or buy the premium plan to unlock more great features.
Windows • macOS • iOS • Android 100% secure
UPDF
UPDF for Windows
UPDF for Mac
UPDF for iPhone/iPad
UPDF for Android
UPDF AI Online
UPDF Sign
Edit PDF
Annotate PDF
Create PDF
PDF Form
Edit links
Convert PDF
OCR
PDF to Word
PDF to Image
PDF to Excel
Organize PDF
Merge PDF
Split PDF
Crop PDF
Rotate PDF
Protect PDF
Sign PDF
Redact PDF
Sanitize PDF
Remove Security
Read PDF
UPDF Cloud
Compress PDF
Print PDF
Batch Process
About UPDF AI
UPDF AI Solutions
AI User Guide
FAQ about UPDF AI
Summarize PDF
Translate PDF
Chat with PDF
Chat with AI
Chat with image
PDF to Mind Map
Explain PDF
Scholar Research
Paper Search
AI Proofreader
AI Writer
AI Homework Helper
AI Quiz Generator
AI Math Solver
PDF to Word
PDF to Excel
PDF to PowerPoint
User Guide
UPDF Tricks
FAQs
UPDF Reviews
Download Center
Blog
Newsroom
Tech Spec
Updates
UPDF vs. Adobe Acrobat
UPDF vs. Foxit
UPDF vs. PDF Expert
Engelbert White
Enola Miller
Enola Davis